Rif: Coazze bilocale con posto auto
COAZZE
TORINO
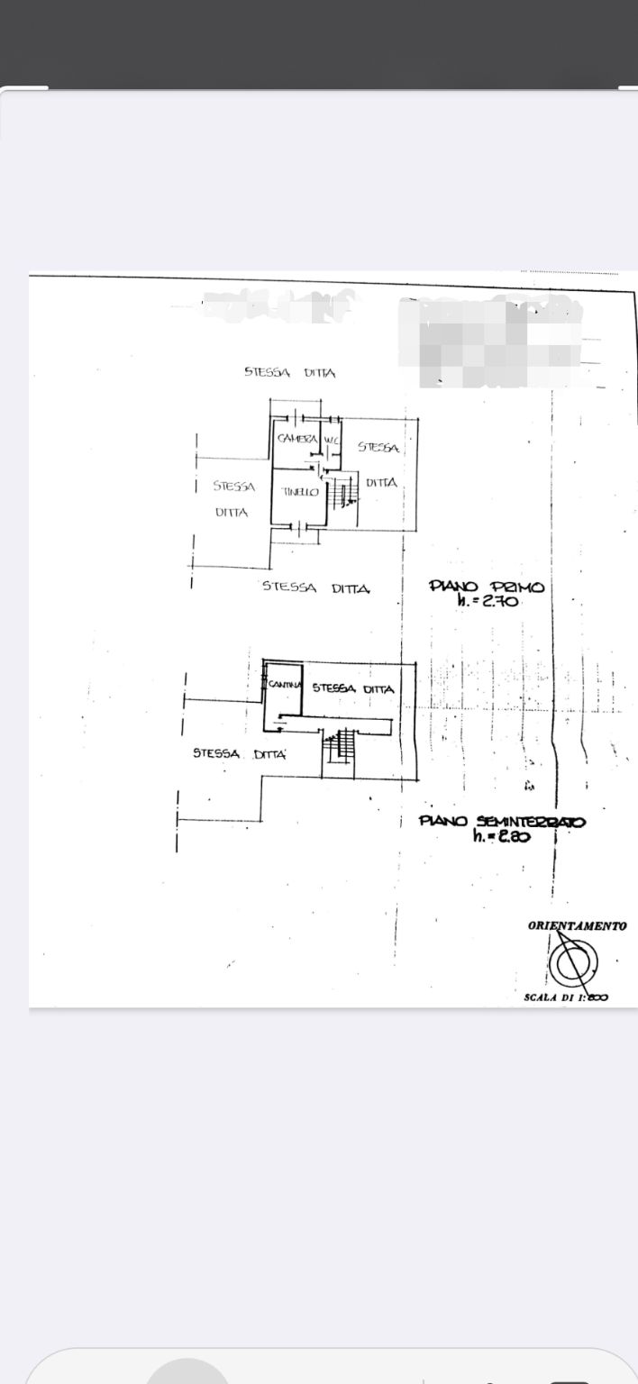
Coazze Via Dovis all'interno dell'esclusivo complesso residenziale "Il Faro" edificato nel 1988 proponiamo in vendita delizioso bilocale panoramico di mq 40 circa situato al primo piano di una elegante palazzina di soli 2 piani. L'alloggio è composto da ingresso, disimpegno, una camera da letto, una cucina abitabile ed un servizio. Completano la proprietà due ampi balconi, una cantina al piano interrato ed un comodo posto auto nel cortile antistante la palazzina. L'alloggio è in buone condizioni interne. Richiesta Eu. 35.000,00
Consistenze
| Descrizione | Superficie | Sup. comm. |
|---|---|---|
| Principali | ||
| Immobile - 1° piano | 40 Mq | 40 Mqc |
| Accessorie | ||
| Posto auto | 15 Mq | 4 Mqc |
| Cantina - piano interrato | 6 Mq | 2 Mqc |
| Totale | 46 Mqc | |

